Immeuble mixte – Habitation et ancienne boulangerie
Situé au cœur de Soumagne-Bas, cet imposant immeuble mixte offre un très beau potentiel tant pour un particulier que pour un indépendant souhaitant combiner habitation et activité professionnelle.
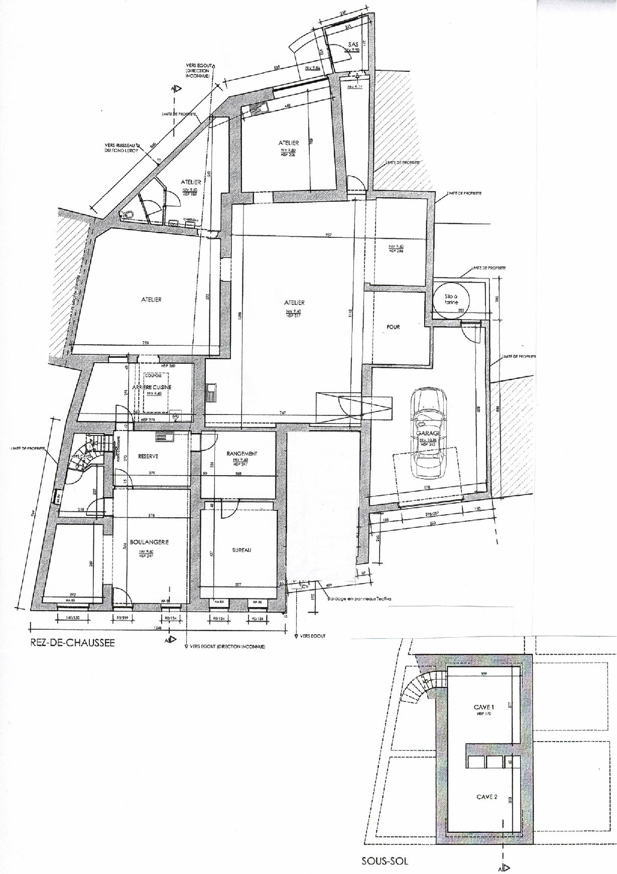
Avec près de 400 m² utiles, le bâtiment se compose d’une partie résidentielle spacieuse et d’une ancienne boulangerie encore équipée de ses installations d’origine (fours, silo), permettant de nombreuses possibilités d’aménagement.
Adresse : Rue de l’Egalité 487, 4630 Soumagne.
PROGRAMME
Habitation
-
Environ 395 m² habitables
-
Possiblité d’aménager 3 chambres
-
2 salles de bains
-
3 toilettes
-
Espaces de vie répartis sur 2 étages
Partie professionnelle
-
Ancienne boulangerie avec installations existantes
-
Ateliers totalisant environ 170 m²
-
Garage attenant de 33 m²
-
Cave de 25 m²
Prix : Faire une offre à partir de 195.000€ Hors frais (régime droits d’enregistrement)
Les plans
INFOS & RENDEZ-VOUS
Contactez-nous pour obtenir plus d’informations et planifier une visite :
Michel Lejeune
















